Nieuw in verkoop:Meester Klokmanstraat 2, 9231 HM Surhuisterveen - Foto
Nieuw in verkoop
+41

Meester Klokmanstraat 2 9231 HM Surhuisterveen € 375.000,- k.k.

  • Woonhuis
  • 5 kamers
  • 3 slaapkamers
  • 1 badkamers
  • Bouwjaar 1957
  • 506 m² perceeloppervlakte
  • 93 m² gebruiksoppervlakte
  • G Energielabel G
Nette vrijstaande woning met grote garage/schuur van ca. 50m²

Beschrijving

Op zoek naar een betaalbare, vrijstaande woning met grote garage/schuur in Surhuisterveen? Dit is je kans!

De woning dateert uit 1957, een degelijk gebouwde woning met spouwmuren van een mooie handvormsteen. Het dak betreft een zadeldak gedekt met pannen, die er nog gaaf uitzien. Wat het geheel bijzonder maakt zijn de stalen beugels onder de zinken dakgoten en het smeedijzeren ornament op de voordeur.

Wat deze woning extra aantrekkelijk maakt is de grote garage/schuur van bijna 50m², eigenlijk zijn het 3 garages naast elkaar. Ideaal voor het stallen van auto’s, motoren, fietsen of te gebruiken als werkplaats.

De woning is misschien niet groot, maar door de wat hogere gootlijn zijn de 3 slaapkamers op de verdieping nog best redelijk qua afmeting. In ca. 2000 is aan de achterzijde een stuk aangebouwd, waar een grote bijkeuken, toilet en nette badkamer is gesitueerd. Het onderhoud van de woning is goed, zowel van binnen als van buiten, misschien enigszins gedateerd, maar wel heel netjes. Verwarming van de woning geschiedt door middel van centrale verwarming. Bijna alle ramen zijn voorzien van zonwering aan de buitenzijde.

Het perceeloppervlak is 506 m², met een tuin helemaal rondom de woning. Aan de achterzijde van de woning is een terras gemaakt, deze ligt op het zonnige zuiden.

De woning ligt gunstig ten opzichte van het centrum, de winkels en de scholen.

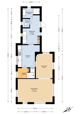
De indeling van de woning is als volgt:
Begane grond:
Entree, halletje met meterkast en trapopgang, separate keuken uit ca. 2000 die niet luxe, maar wel netjes is en voorzien van gaskookplaat, afzuigkap, koelkast en combimagnetron, ook is er een kelder aanwezig, fijn voor groente, fruit, aardappels, kratje bier of flessen wijn. Vanuit de keuken is er een deur naar de woon- en eetkamer en er is een deur naar de aanbouw aan de achterzijde met royale bijkeuken voorzien van wasmachineaansluiting, CV-ketel, toilet en badkamer met douche, wastafelmeubel en designradiator, ook is hier de achterdeur naar de tuin.

1e verdieping:
Overloop met een vaste kast, toilet, 3 slaapkamers waarvan 2 met een vaste kast en één met een wastafel en vanuit de achterste kamer is er een deur naar het platte dak.

2e verdieping:
Vanaf de overloop is er een Vlizotrap naar de zolderberging, altijd handig voor het opbergen van koffers en kerstspullen.

Surhuisterveen is een hele gezellige plaats met een groot winkelaanbod waar altijd wat te doen is. Er zijn zowel basisscholen als middelbare scholen en het is een sportief dorp met de alom bekende profronde en ieder jaar de Feanster-40 (triatlon). Er zijn veel sportvoorzieningen waaronder een voetbalvereniging als ook een tennisclub met padelbanen en een openluchtzwembad. Surhuisterveen is ook gunstig gelegen ten opzichte van de A7, Drachten, Groningen en Leeuwarden. Kortom, je geniet van de gezelligheid van een dorp, terwijl alle voorzieningen aanwezig zijn.

Geïnteresseerd in deze woning? Bel voor meer informatie of het maken van een vrijblijvende afspraak 0512-350500.

Kaart

Kenmerken

Overdracht

Referentienummer
00081
Vraagprijs
€ 375.000,- k.k.
Status
Nieuw in verkoop
Aanvaarding
In overleg
Aangeboden sinds
Vrijdag 17 oktober 2025
Laatste wijziging
Donderdag 23 oktober 2025

Bouw

Type object
Woonhuis, eengezinswoning, vrijstaande woning
Soort bouw
Bestaande bouw
Bouwperiode
1957
Isolatievormen
Gedeeltelijk dubbel glas

Oppervlaktes en inhoud

Perceeloppervlakte
506 m²
Woonoppervlakte
93 m²
Woonkameroppervlakte
26,79 m²
Keukenoppervlakte
8,45 m²
Inhoud
339 m³
Oppervlakte overige inpandige ruimten
1 m²
Oppervlakte externe bergruimte
55 m²

Indeling

Aantal bouwlagen
3 (en 1 kelder)
Aantal kamers
5 (waarvan 3 slaapkamers)
Aantal badkamers
1 (en 2 aparte toiletten)

Locatie

Ligging
In woonwijk
Nabij school

Tuin

Type
Tuin rondom
Oriëntering
Zuiden
Heeft een achterom
Ja
Staat
Normaal

Energieverbruik

Energielabel
G

CV ketel

CV ketel
Awb
Warmtebron
Gas
Combiketel
Ja
Eigendom
Eigendom

Uitrusting

Aantal parkeerplaatsen
3
Warm water
CV-ketel
Verwarmingssysteem
Centrale verwarming
Badkamervoorzieningen
Douche
Wastafelmeubel
Parkeergelegenheid
Vrijstaande stenen garage
Tuin aanwezig
Ja
Heeft een garage
Ja
Heeft schuur/berging
Ja
Heeft zonwering
Ja

Kadastrale gegevens

Kadastrale aanduiding
Surhuizum B 4924
Perceeloppervlakte
506 m²
Omvang
Geheel perceel
Eigendomsituatie
Eigen grond

Brochure(s) en overige bijlagen

Meester Klokmanstraat 2, 9231 HM SURHUISTERVEEN (1) Download